Ny Rørtangbebyggelse
Tvivlsom kommunal sagsbehandling

Kære medlemmer: Som det kan læses af nedenstående vil SBF støtte op omkring, at kommunen foretager en revurdering,
af den nye bebyggelse i Rørtang. Der blev igangsat en fysisk- og online underskriftindsamling, hvor det fremgik hvad man støtter, underskriver.

Kort fortalt omkring ny bebyggelse på Rørtang
Ang:  Beslutningssag: Startredegørelse for lokalplan 1.109 for
boliger ved Rørtangvej i Snekkersten

På baggrund af medlemshenvendelser og fra Grundejerforeningerne Skibsegen, Borupgård Vest og Danmarks Naturfredningsforening har Snekkersten Borgerforening gennemlæst Dagsorden og referat af Teknik-­‐, Miljø & Klimaudvalgets (TMK) møde den 16-­‐08-­‐2016 hvor TMK skulle tage stilling til en ansøgning om boligbyggeri af 27 boliger kan godkendes som grundlag for lokalplanarbejdet.

Snekkersten Borgerforenings bestyrelse har valgt at støtte ovenstående foreninger med opfordring til revurdering af ny bebyggelse bl.a. med nedenstående begrundelser.

TMK. Dagsorden 16-­‐08-­‐2016 pkt. 04: Allerede i dagsordenpunktet side 8 og 9 ringer alarmklokkerne når faktuelle data til baggrund og gennemgang for en kvalificeret beslutning ikke er til stede.

I dagsorden pkt. 04 har man ikke oplyst overfor medlemmerne af udvalget at sagen strider bl.a. imod rammer for lokalplanlægning i Kommuneplanen 2009-­‐2020 pkt. 1.B.90 side 229 som klart og tydelig siger at der max. må bygges 16 boliger i 2 etager med en  bebyggelsesprocent på 25%. Bebyggelsen skal ligeledes friholdes 15 m fra nordvestlig fredet  skel. Der er i alt 8 punkter fra a til h kommende lokalplan skal overholde iflg. vedtaget kommuneplan 2009-­‐20.

Disse vigtige oplysninger fremkommer først i 04. bilagssektionen i dagsorden side 124 til 128, 3 sider. Det oplyses endvidere i bilaget at afstand til fredet stendiger kan reduceres fra 15m til 8m. Disse punkter, ændringer vil kommunen imødegå med en kommuneplan-­‐  tillæg.  Se illustration af de fredede stendiger

Trods ovenstående skriver TMK at: ”Sagen giver ikke anledning til særskilt kommunikation/høring”. Center for Teknik-­‐, miljø og klima indstiller. Citat: Dagsorden side 9. Vi taler om en bebyggelse på et skrående terræn på 6 meter. Dertil en etagehøjde på 8,5, som jo i terræn beregninger / snit, kan fremstå endnu højere set nedefra, anslået op til 14-­15 meter grundet det skrående terræn.

Endnu være er det at boligerne ikke er arkitektonisk beskrevet i beslutningssagen for en startredegørelse for en lokalplan. Den arkitektoniske beskrivelse ville først fremkomme en uge efter udvalgsmødet er afholdt, som der skrives, – men TMK indstiller.

Dette ligeledes uhørt i et så naturmæssigt åbent, kuperet landskab ud mod den fredede Rørtangkile og tæt på resterne af Rørtang landsby. Grænsen imellem land og by udviskes og færden i den grønne kile forringes.

Der er endvidere mange andre ubeskrevne problematiske forhold. Til- og frakørsel til bebyggelsen, parkeringspladser for at nævne nogle af tingene.  

Hvordan  kan  ansvarlige  udvalgsmedlemmer, lønnet af Helsingørs skatteborgere, været med  til en sådan ukvalificeret sagsbehandling? -­‐  Ved udvalgsmedlemmerne ikke hvad de stemmer  om?

Fortætning – fortætning er kommunens mantra
- men er det for en hver pris

Grunden har stået ubebygget i mange år trods tilladelse til at bygge 16 boliger. Nu er grundet købt af en tidligere lokal ejendomsmægler som står som bygherre og ansøger om at bygge 27 boliger i 2 etager, altså 60% flere boliger og en øget bebyggelsesprocent fra 25% til 34%. Wupti – så kører det.

Det er ikke i orden trods kommunens mantra ”Tilflyttere-­‐ tilflyttere, fortætning og fortætning. Beboere i området har købt deres huse i tiltro til Kommuneplanens lokalplanlægning. Nogle ejendomme bliver tvangsflytter fra Land-­‐ til byområde med dertil hørende øget boligudgifter.

Det vil være rystende hvis en sådan sagsbehandling ikke kommenteres. Ifølge TMK tids-­ og procesplan vil den allerede komme til politiske behandling og endelig vedtagelse februar 2017.

Snekkersten Borgerforening: Helsingør Kommune, Teknik-­ , Miljø og klima. Revurder sagen så Helsingørs borgere kan få tillid til kommunal sagsbehandling.

Som det beskrives i Helsingør kommunes værdier:

… ”Helsingør styrke ligger i den lokale forankring, de lokale historier – som kan opleves på håndgribelig måde. Oplevelsen af Helsingør skal gennemsyres af kvalitet, ærlighed og ægthed og autencitet, -­ eller hvad?.


Ny bebyggelse i Rørtang markeret med blåt. Lokalplan 1.109 indrammet i blå streg


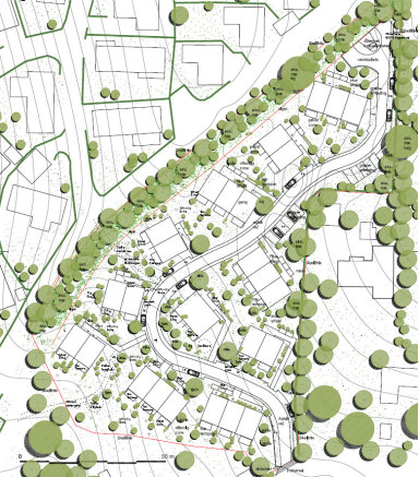
Plantegning over foreslået bebyggelse.


De kraftige mørke beige striber er fredet / beskyttet stendiger. De stribe-­markeret områder er fredninger.